Zvolte si typ nemovitosti

Parkování

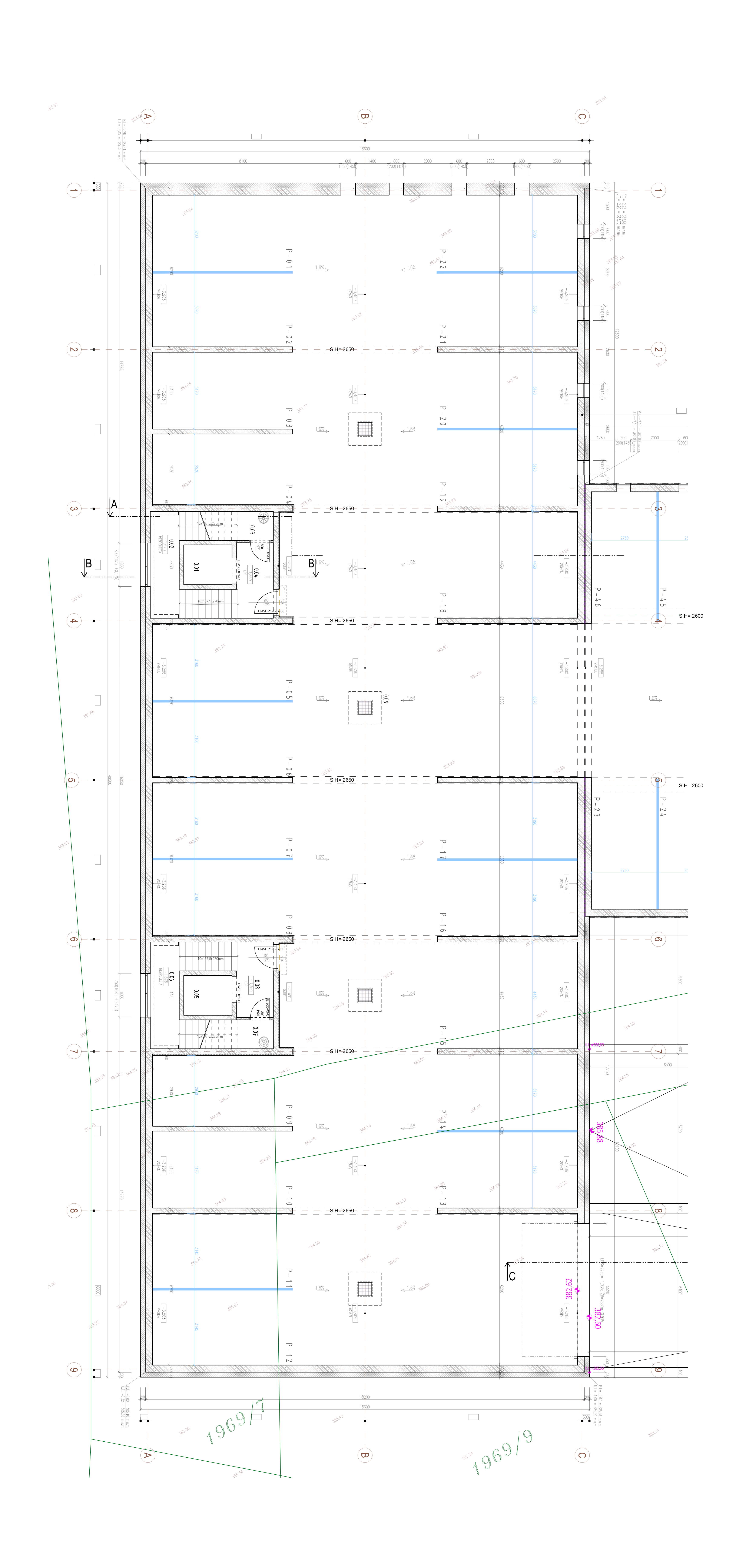
V 1. podzemním podlaží si můžete zakoupit vnitřní parkovací stání k bytu za cenu 399.000,– Kč vč. DPH. Na rozložení parkovacích míst se můžete podívat výše v situačním plánku. O stavu volných a prodaných míst vás budeme aktuálně informovat. Stačí vyplnit formulář s dotazem kdekoli zde na webových stránkách.

kontakt na prodejce

Napište nám

*
*
*
*

zoom